Herd/BackofenMIELE H 7262 BP OS
Energieklasse: A+ (Spektrum: Von A+++ bis D)
Spektrum: Von A+++ bis D
WeitereMiele Kaffeevollautomat CVA 7445 OS
Küchengeräte Spülen
GeschirrspülerMIELE PG 8083 SCVI XXL
Energieklasse: E (Spektrum: Von A bis G)
Spektrum: Von A bis G
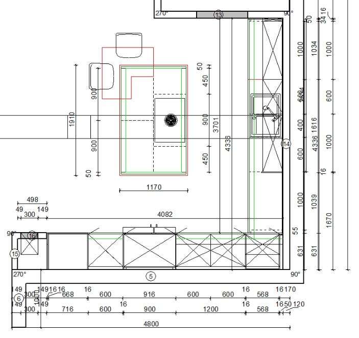
SpülbeckenSCHOCK: Einbauspüle Mono D- 100 S, aus CRISTADUR® Magma Ausstattung 1 Becken 340 x 440 x 195 mm Abtropffläche inkl. 3 1/2'' Korbventil Excenterausstattung mit Ab- und Überlaufgarnitur 2 Hahnlochbohrungen, davon 2 Sollbruchstellen Raumsparsiphon Reversibel, Maße Außenmaße: 740 x 510 mm Ausschnittmaße: 720 x 490 mm
MischbatterieBLANCO UNIT bestehend aus Soda & Filter 5-in-1-Trinkwassersystem, Wassersystem BLANCO EVOL-S Pro Soda & Filter, PVD steelHochdruck mit Schlauchbrause - 5-in-1 Semi-Profi-Armaturmit integrierter Messbecherfunktion und Click & Touch-Bedienung - Hochwertige Kühl- und Karbonisierungseinheit - Hochwertiger Mehrstufen-Filter mit Ionentauscher und Aktivkohle von BWT - 425g CO2-Zylinder - Reinigungsset (BWT EasyCare), Abfallsystem BLANCO SELECT II Soda - Auszugssystem zur Frontanbindung, - Systemabdeckung, 1 x 30 l Eimer
WeitereBei der Armatur handelt sich um ein Trinkwassersystem der Firma Blanco